SEE OUR OFFER:

PHOTOGRAMMETRIC FLIGHTS / LASER SCANS / POINT CLOUDS!

 

Thanks to the implementation of ultra-modern technologies in our company, we are pleased to present you with unmatched quality surveying, based on photogrammetry and laser scanning.

 

Architectural surveys have never been so precise!

 

We are able to make 3D models of objects with accuracy up to 2mm!

 

Advanced technology is based on drones and hundreds of shots from the air. Then, with advanced software, we get spatial computing. Photos are precisely positioned in space and then so-called point clouds are being created.

 

Based on the point cloud, we are able to make a very precise BIM model.

 

We carry out photogrammetric flights for:

 

  • point clouds
  • architectural surveys
  • geodetic surveying
  • terrain models for visualizations

 

 

We do also:

 

  • aerial photos and videos for marketing purposes
  • proffesional video editing with music and professional lector

 

 

Ask for your quotation today!

OFFER <- click here

For precise inventorying
we use a professional scanner

 

Leica ScanStation C10

 

300 metres range!

Object is being scanned from the outside as well as the inside with a laser scanner, while supported by drone photogrammetry for the  clouds creation of external hard-to-reach places, eg: roofs.

 

As a result, we get a very precise point cloud ready for further processing.

 

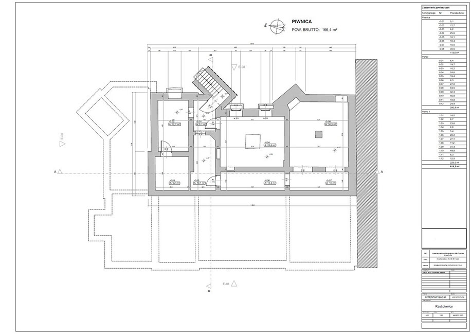
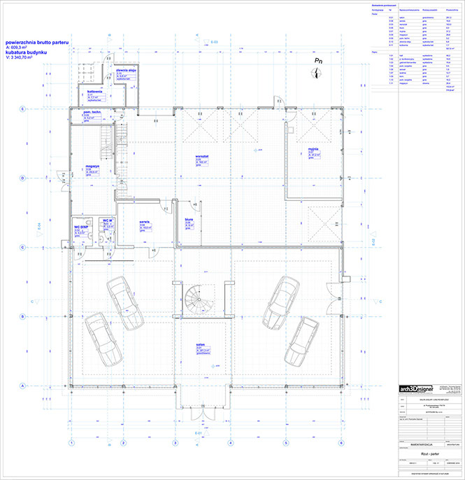
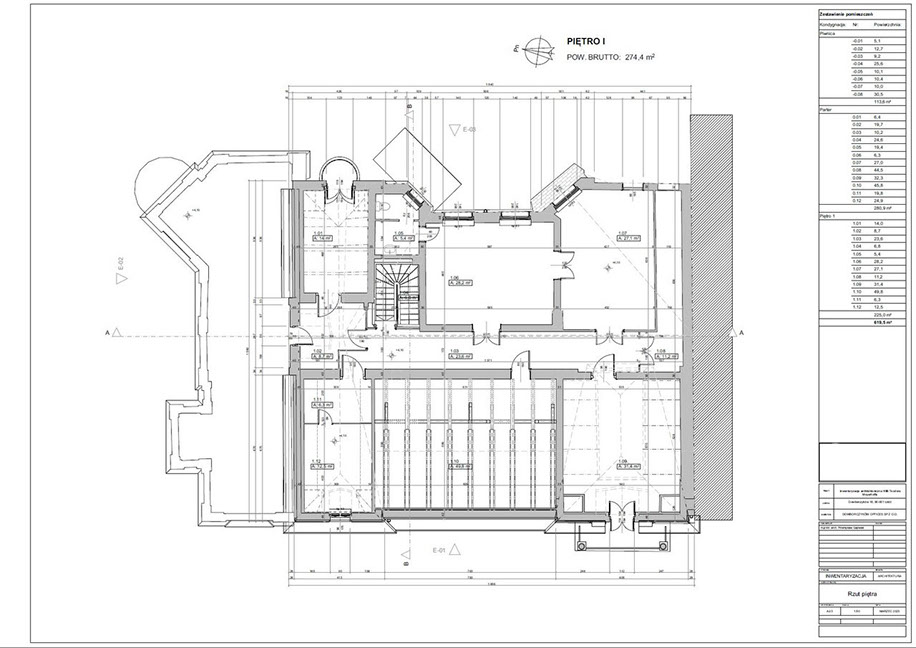
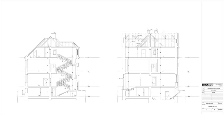
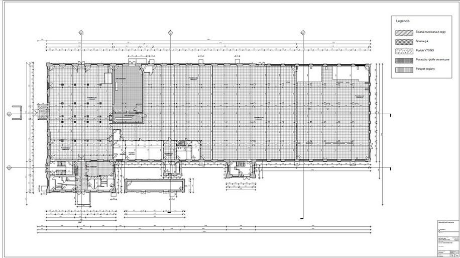
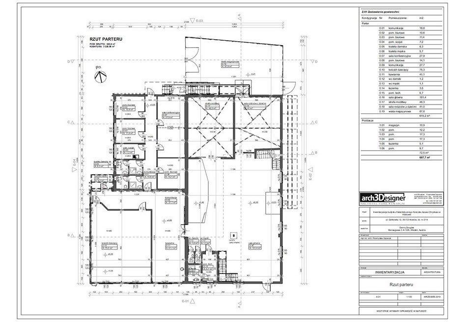
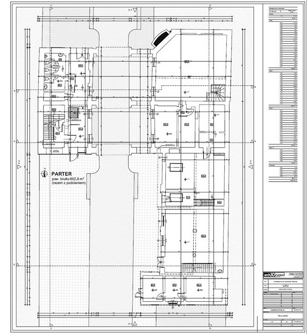
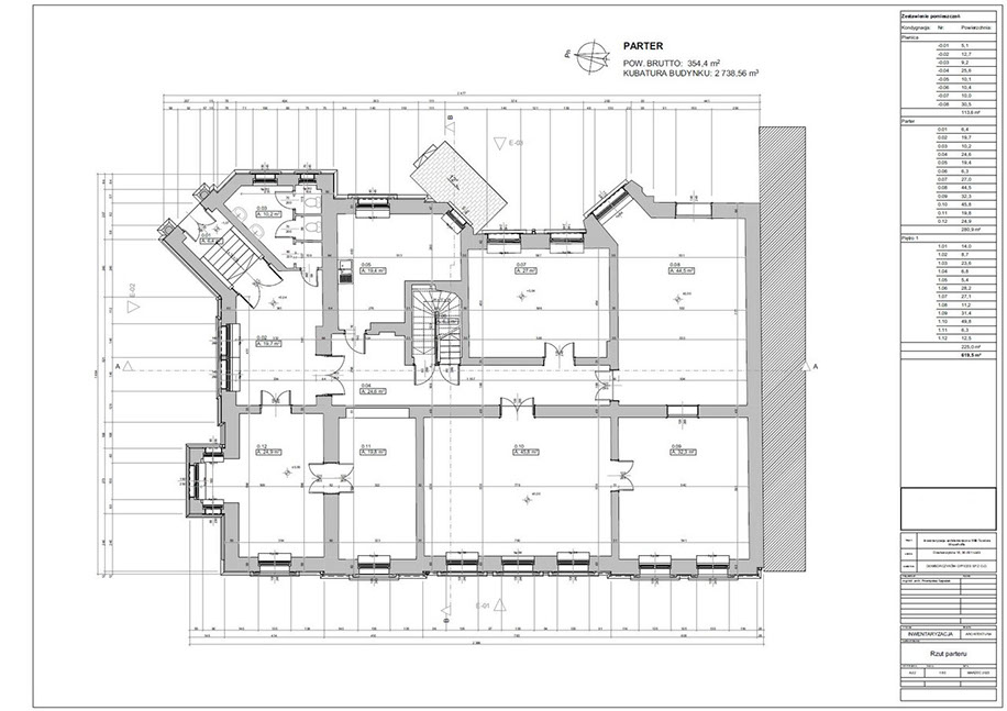
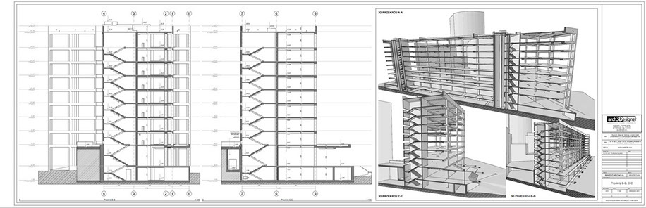
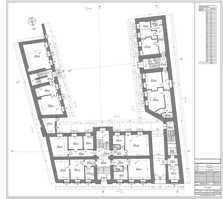
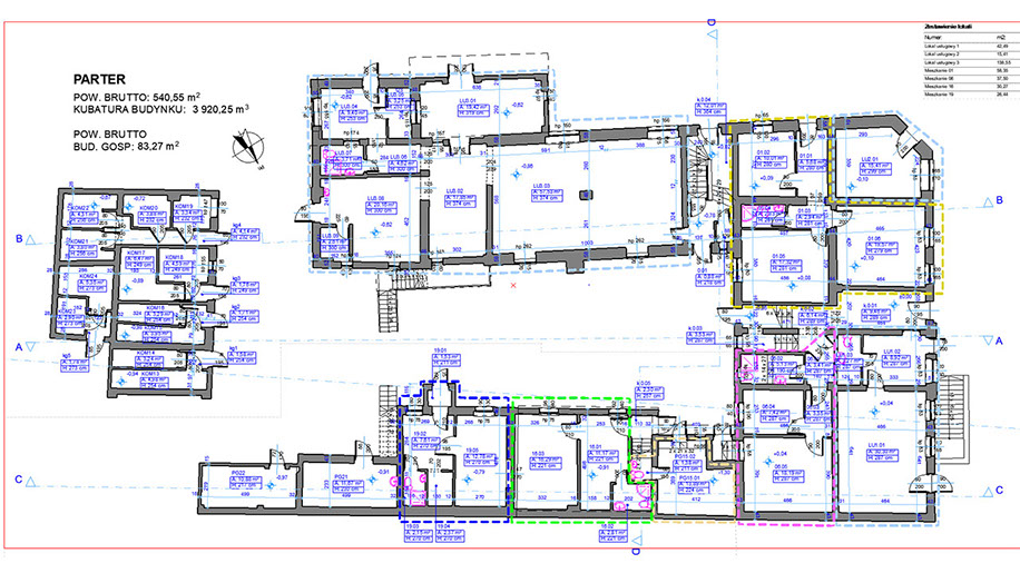
The point cloud serves as the basis for creating a precise BIM model, from which we produce all technical documentation: floor plans, cross-sections, elevations.

 

Thanks to this technology, the survey is very precise and the overall execution time is dramatically shorter than traditional methods!

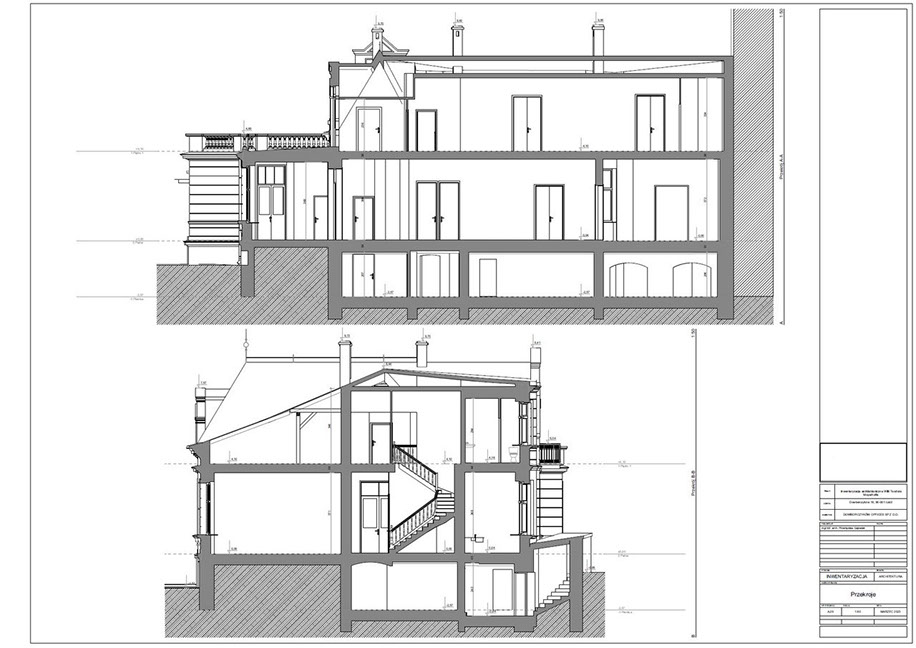
Przykład jednej z naszych realizacji: Łódź, Włókiennicza 11, dom Hilarego Majewskiego. Skan na potrzeby rewitalizacji kamienicy.

Thanks to top-notch equipment, our measurements are done professionally with great attention to detail!

 

Canon 5D mark IV + L series lenses

Special licensing allow us to make commercial flights in almost any location!

 

BVLOS up to 25kg license!

 

 

dron DJI Phantom 4 Pro / 4k 60 fps!

DJI Matrice 600 can be rented

EXAMPLES OF OUR WORK

HISTORIC TENEMENT HOUSE, PABIANICE

BRICK FACTORY, PABIANICE

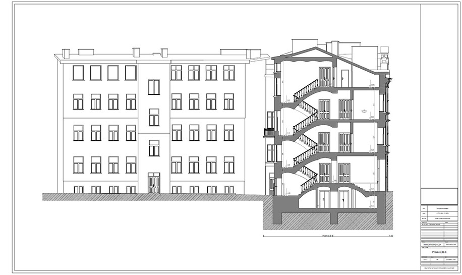
XIX CENTURY TENEMENT HOUSE, LODZ

TENEMENT HOUSE 1898 y, INOWROCLAW

FAMILY HOUSE

TENEMENT HOUSE, POZNAN

STEIGERT`S MANSION, LODZ

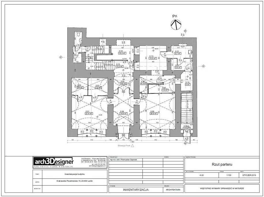
TENEMENT HOUSE, LUBLIN

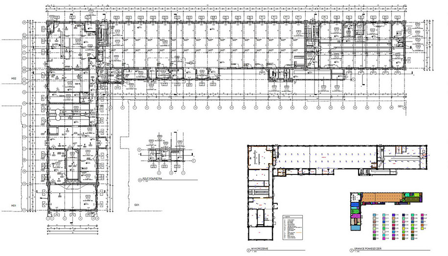
OFFICE & HOTEL BUILDING CA. 10 000 SQM, WARSAW

1752 YEAR  MANSION, JESIONNA

TENEMENT HOUSE, LUBLIN, KRAKOWSKIE PRZEDMIESCIE

G1 & G2 FACTORY BUILDINGS, LODZ, TYMIENIECKIEGO

MISC SURVEYS, POZNAN / LODZ

CATHETRIC CHURCH OF JESUS CHRIST, CRACOW

AREA COMMISION BUILDING, LUBLIN

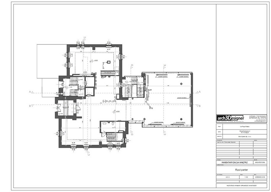
LA PLAYA PALACE - INTERIORS, SOPOT

POST FACTORY BUILDING, LODZ, TUWIMA 10

GROUNDLAND AREA UNDER ŁOWICZ

JAGUAR SALOON, LODZ, PRZYBYSZEWSKIEGO 176/178

OFFICE BUILDING, LODZ, ZACHODNIA 70

DERMATOLOGICAL HOSPITAL, LODZ, KRZEMIENIECKA 5

OTHER EXAMPLES

Photogrammetry in animation!

 

Here are examples of the photogrammetry & scans implementation into an animation. With this combination, we can create professional-looking projections of the existing state, combined with newly designed architecture! The whole picture is completed by a professional production compiled into a 3-4 minute video clip with the background music.

 

What are you waiting for? Send us a request for quotation for your design today!

LET`S COOPERATE!